Page suivante
Page précédente
Cavalaire-sur-Mer (83240)

Maison

848 000 €
Réf N004-83 Villas mona
Villa N°4

VEFA - CAVALAIRE SUR MER

Programme intimiste

Livraison 1 semestre 2026


Nichée dans un quartier résidentiel à proximité immédiate du centre-ville, du port et des plages, votre future villa dévoile une élégante façade en triptyque. Chaque maison combine harmonieusement pierres reconstituées, enduit minéral et lattis bois, créant une architecture moderne et soignée.

Conçue en triplex, elle intègre un penthouse exceptionnel, équipé d'une piscine-jacuzzi et d'une cuisine extérieure. Chaque maison dispose également de deux places de stationnement.


Le rez-de-chaussée met en valeur des espaces lumineux et spacieux, avec une pièce de vie ouverte sur une cuisine contemporaine. Cet espace s'étend sur une grande terrasse bordée d'un jardin clos et magnifié par une végétation abondante, garantissant intimité et sérénité.

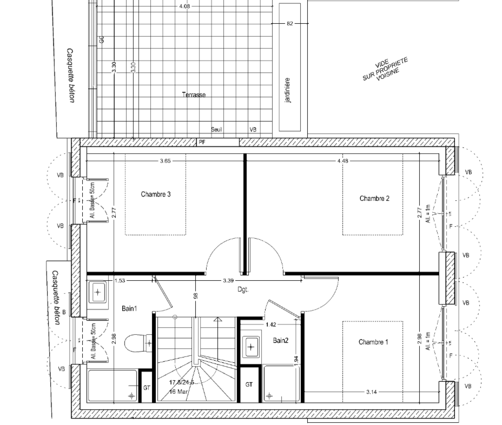
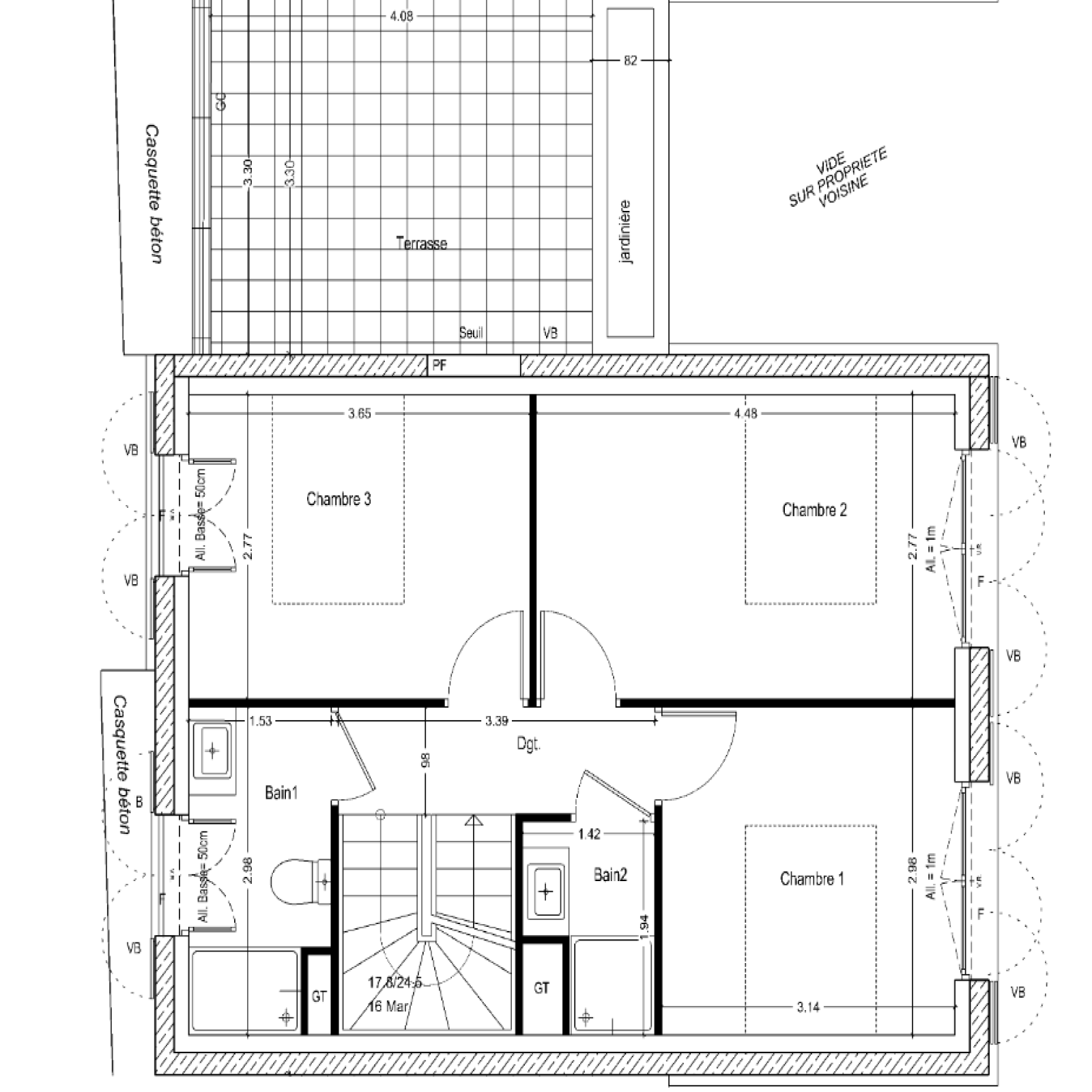
A l'étage, trois chambres et deux salles de bains s'organisent autour d'une deuxième terrasse, agrémentée d'une jardinière et d'une pergola, préservant toute intimité.

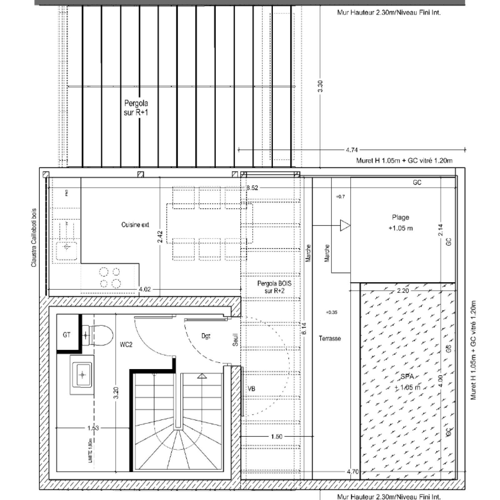
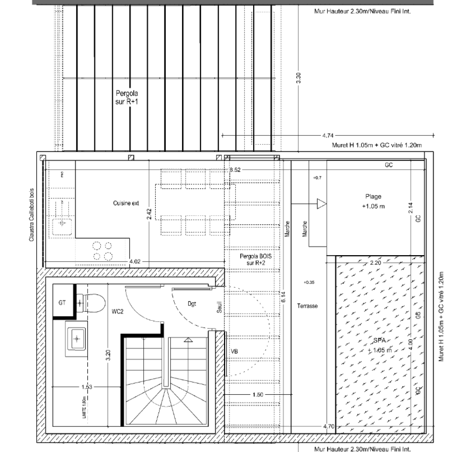
Enfin, le toit-terrasse au dernier niveau devient un véritable havre de détente, avec sa piscine-jacuzzi et sa cuisine extérieure, parfaits pour profiter des moments de bien-être et de convivialité en bord de l'eau.

Rez-de-chaussée : - Espaces lumineux et spacieux. - Pièce de vie ouverte sur une cuisine contemporaine. - Accès à une grande terrasse prolongée par un jardin clos et verdoyant, assurant intimité et sérénité.

Premier étage : - Trois chambres. - Deux salles de bains. - Deuxième terrasse équipée d'une jardinière et d'une pergola, préservant l'intimité.

Toit-terrasse : - Piscine-jacuzzi. - Cuisine extérieure. - Espace dédié au bien-être et à la convivialité en bord de l'eau.


Le programme propose 8 villas:

  • Maison n°1 - 5 pièces - 90 m²

    839 000 € Soit 9 302 €/m²

    Jardin 73.85m2 Terrasse 32.34m2 2 Parkings

Maison n°2 - 5 pièces - 90 m²

842 000 € Soit 9 335 €/m²

Jardin 36.66m2 Terrasse 43.15m2 2 Parkings

Maison n°3 - 5 pièces - 90 m²

845 000 € Soit 9 368 €/m²

Jardin 36.87m2 Terrasse 43.15m2 2 Parkings

Maison n°4 - 5 pièces - 90 m²

848 000 € Soit 9 401 €/m²

Jardin 3.34m2 Terrasse 43.14m2 2 Parkings

Maison n°5 - 5 pièces - 90 m²

850 000 € Soit 9 424 €/m²

Jardin 37.82m2 Terrasse 43.14m2 2 Parkings

Maison n°6 - 5 pièces - 90 m²

852 000 € Soit 9 446 €/m²

Jardin 43.58m2Terrasse 43.14m22 Parkings

Maison n°7 - 5 pièces - 90 m²

860 000 € Soit 9 534 €/m²

Jardin 38.76m2Terrasse 43.14m22 Parkings

  • Maison n° 8 - 5 pièces - 90 m²

    865 000 € Soit 9 590 €/m²

    Jardin 54.57m22 Parkings

Pour plus d'information contactez LORENZA PROPERTIES au 06 03 82 54 86.

Bilan énergétique

Diagnostics énergetiques
Consommation énergétique
A B C D E F G
Emission de gaz à effet de serre
A B C D E F G
DPE ANCIENNE VERSION
A propos de ce bien Caractéristiques de ce bien
  • Surface 90,20 m²
  • séjour 29 m²
  • 3 chambre(s)
  • 2 salle(s) de bain
  • 2 parking(s)
  • exposition Est-Ouest
  • 3 niveau(x)

Composition

Composition de ce bien

Etage 1

  • chambre 9.36 m²
  • chambre 12.39 m²
  • chambre 10.09 m²
  • salle de bain 4.29 m²
  • salle de bain 2.30 m²
  • terrasse 13.54 m²

Rez-de-chaussée

  • cuisine 5.92 m²
  • WC 2.36 m²
  • entrée 4.10 m²
  • salon/sejour 29.73 m²
  • jardin 37.34 m²
  • terrasse 10.80 m²
  • parking 15.50 m²
  • parking 12.50 m²

Etage 2

  • terrasse 18.80 m²
  • espace bien-être 8.80 m²
  • cuisine 9.71 m²
  • WC 3.54 m²

Financier

Informations financières
Prix de vente honoraires TTC inclus 848 000 €

Autour du bien

Découvrez le quartier
  • Commerces et santé
  • Loisirs
  • Ecoles
  • Transports
  • Pratique

Simulation

Calcul des mensualités
* Champs obligatoires
Mareva DELUCCA Négociatrice