Page suivante
Page précédente
Roquebrune-Cap-Martin (06190)

Villa 14 pièce(s) 4 chambre(s) 274.84 m²

2
2
7
3 850 000 €
Réf DMOVI20000027

VILLA D’EXCEPTION À ROQUEBRUNE-CAP-MARTIN – À PROXIMITÉ IMMÉDIATE DE MONACO

Lorenza Properties vous propose en exclusivité une superbe propriété située à seulement quelques minutes de Monaco, à 500 mètres des plages de Carnolès.

Cette villa contemporaine aux lignes élégantes offre une qualité de vie incomparable, répartie sur 5 niveaux desservis par un ascenseur privatif. La surface habitable atteint 275 m², complétée par plus de 500 m² de surface utile incluant de vastes terrasses, un rooftop paysager avec spa de nage, coin barbecue, pergola et brasero.

Un véritable cocon de sérénité, bénéficiant d’une vue panoramique sur les environs.

Caractéristiques principales :

  • Surface habitable : 275 m²

  • Surface utile : plus de 500 m²

  • 5 niveaux avec ascenseur intérieur

  • Vaste pièce de vie de 78 m² baignée de lumière naturelle

  • 4 chambres, dont une magnifique suite parentale de 60 m² avec double dressing

  • Cuisine et salles de bains équipées

  • Salle de sport, hammam, sauna, jacuzzi intérieur

  • Mobilier et décoration de qualité, intégrés avec soin

Prestations haut de gamme :

  • Climatisation gainable

  • Système domotique (gestion à distance des volets, etc.)

  • Finitions soignées : carrelage italien grand format, parquet en chêne

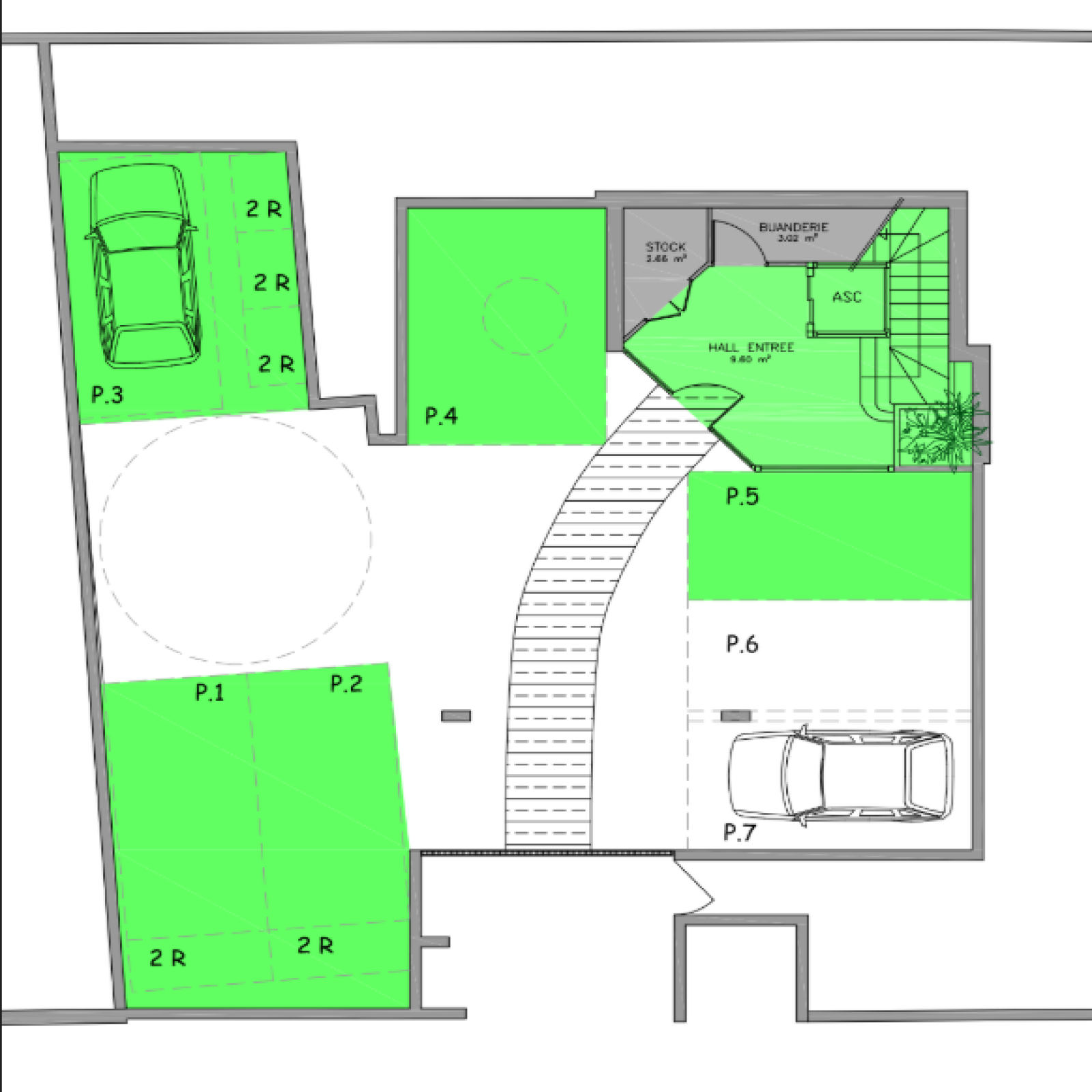
  • Garage double avec borne de recharge pour véhicule électrique

  • 7 stationnements au total

Ce bien rare incarne une parfaite alliance entre architecture contemporaine, confort absolu et technologies avancées, dans un cadre recherché et paisible.

Bilan énergétique

Diagnostics énergetiques
Consommation énergétique
A B C D E F G
Emission de gaz à effet de serre
A B C D E F G
DPE ANCIENNE VERSION
A propos de ce bien Caractéristiques de ce bien
  • Surface 274,84 m²
  • séjour 65 m²
  • 4 chambre(s)
  • 2 salle(s) de bain
  • 2 salle(s) d'eau
  • 7 parking(s)
  • 4 niveau(x)
  • accès handicapé

Composition

Composition de ce bien

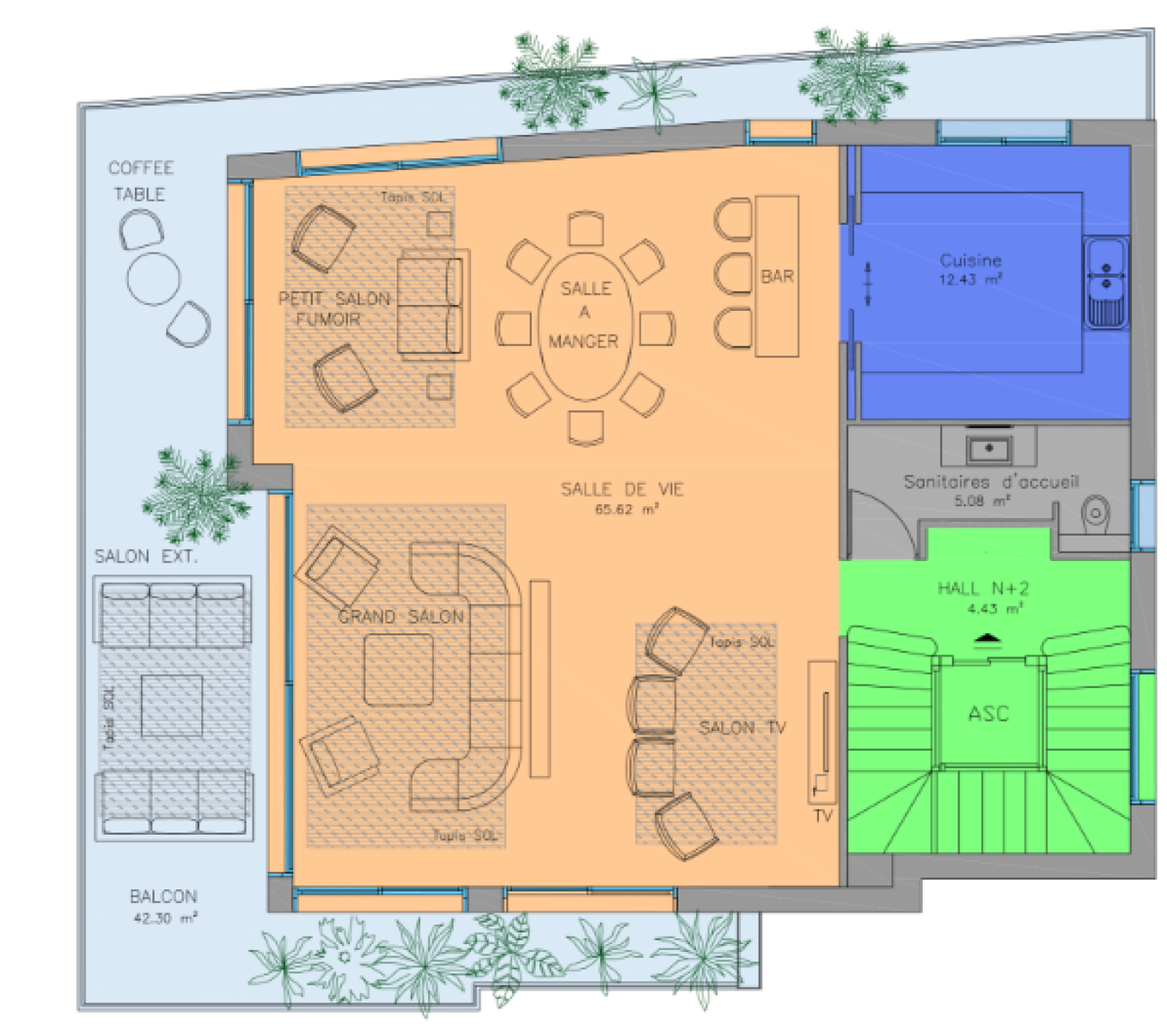
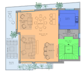
Etage 1

  • salon/sejour 65.62 m²
  • cuisine 12.43 m²
  • terrasse 42.30 m²
  • WC 5.08 m²

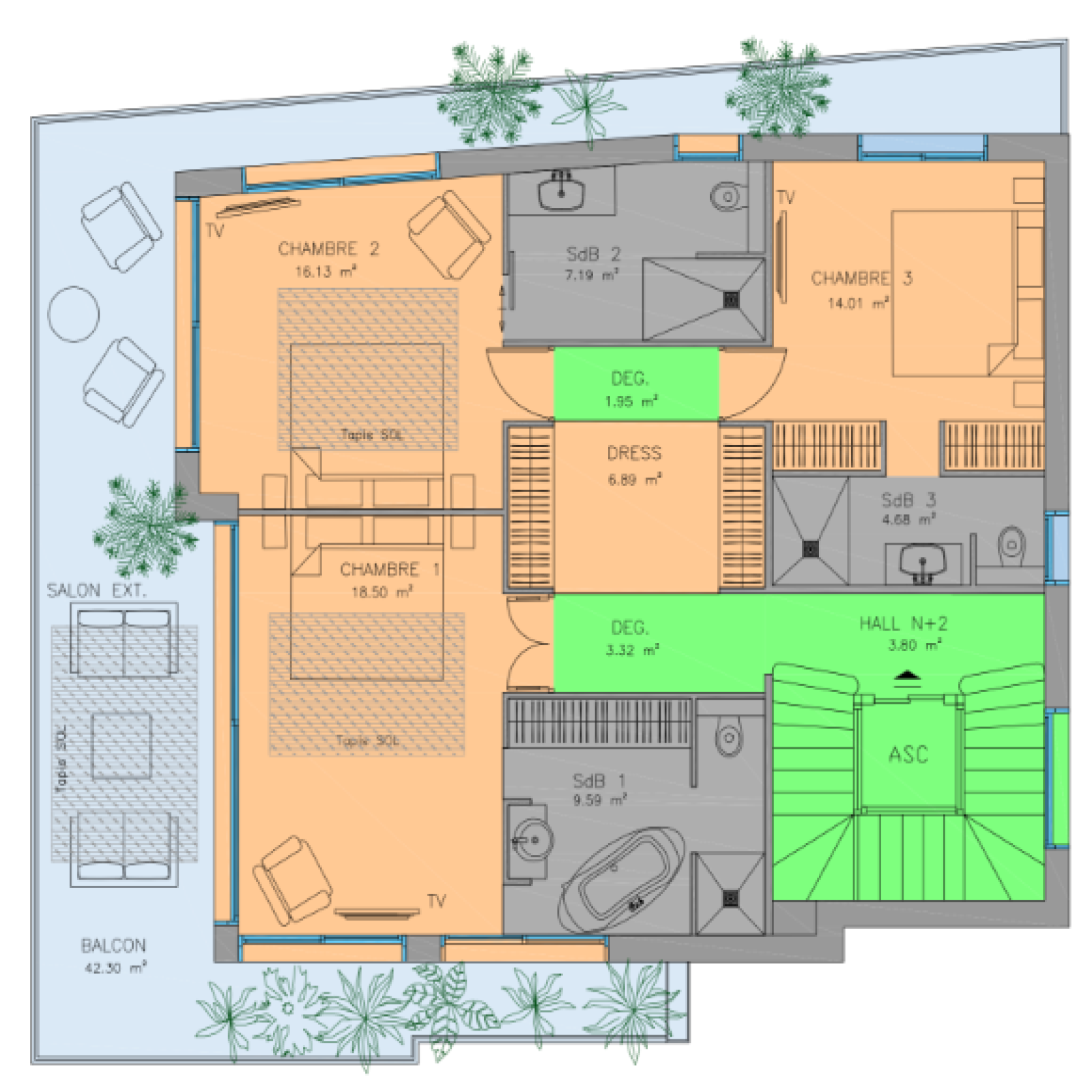
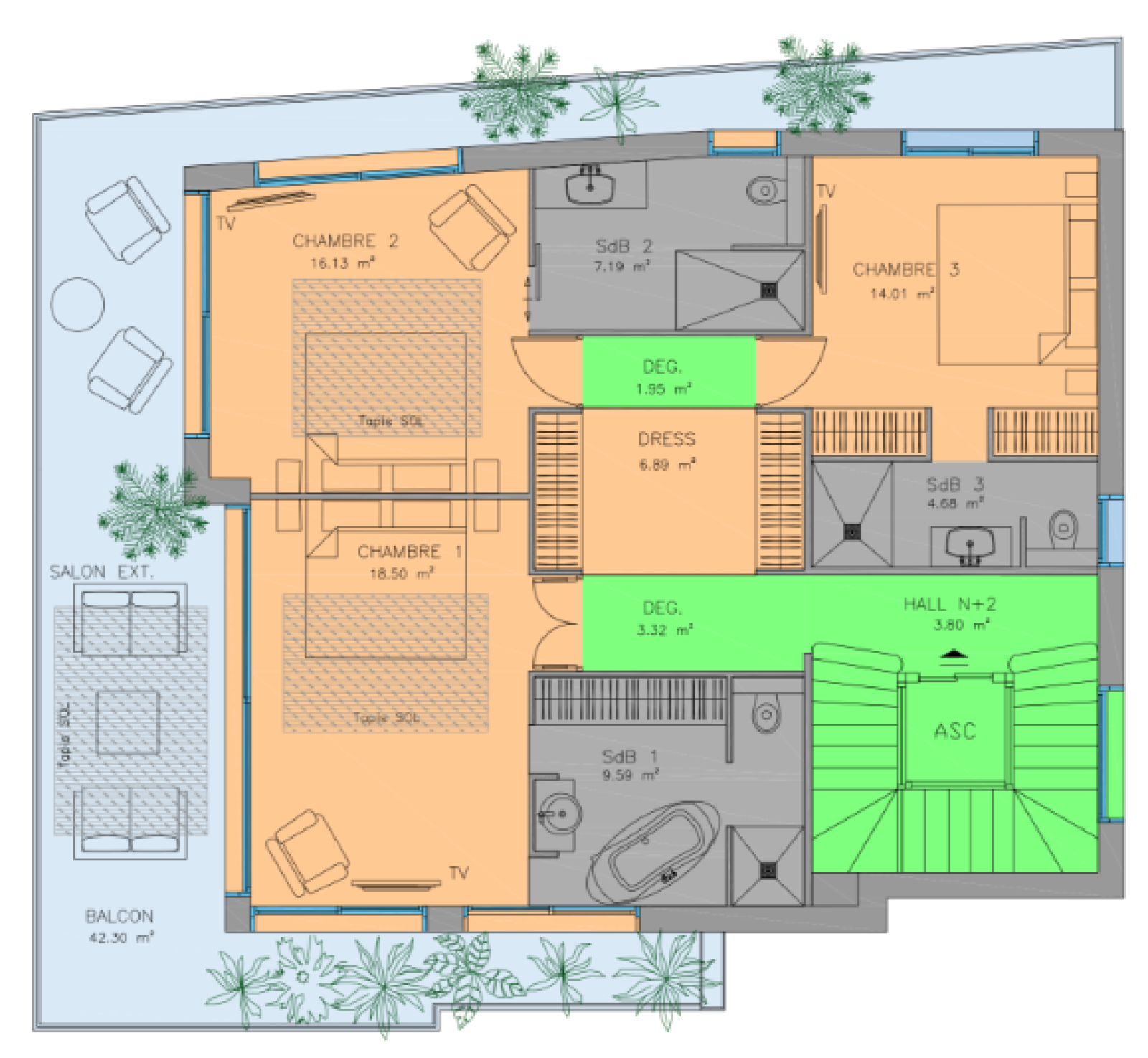
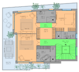
Etage 2

  • chambre 18.50 m²
  • chambre 16.13 m²
  • salle de bain 9.59 m²
  • salle de bain 7.19 m²
  • chambre 14.01 m²
  • salle de bain 4.68 m²
  • terrasse 42.30 m²
  • dressing 8.84 m²

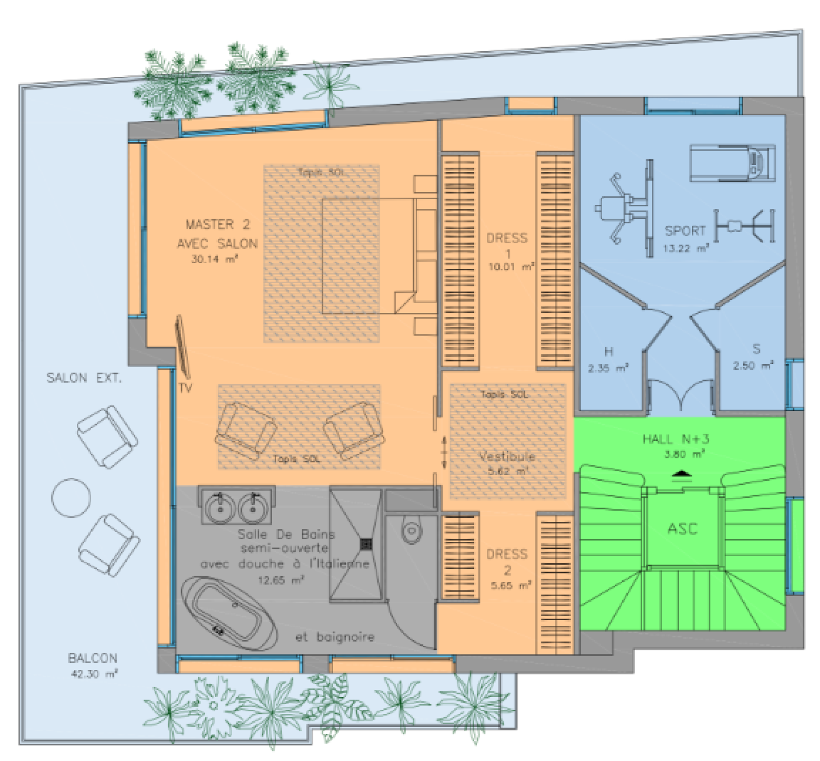
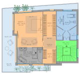
Etage 3

  • chambre 30.14 m²
  • salle de bain 12.65 m²
  • dressing 10.01 m²
  • dressing 5.65 m²
  • Salle de Sport 18.07 m²
  • terrasse 42.30 m²

Etage 4

  • cuisine 22.40 m²
  • terrasse 93.07 m²
  • WC 1.70 m²

Rez-de-chaussée

  • buanderie 3.02 m²

Financier

Informations financières
Prix de vente honoraires TTC inclus 3 850 000 €

Autour du bien

Découvrez le quartier
  • Commerces et santé
  • Loisirs
  • Ecoles
  • Transports
  • Pratique

Simulation

Calcul des mensualités
* Champs obligatoires
Mareva DELUCCA Négociatrice